Soler & Palau MSK-AFP 150 protimrazová ochrana

Výrobca: Soler & Palau
Zdieľať:

220,88 EUR

179,58 EUR bez DPH

220,88 EUR

179,58 EUR bez DPH
Nákup na splátky

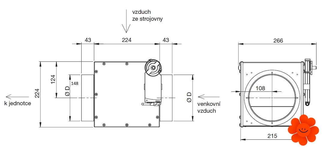
Klapka MSK-AFP je ochrana proti zamrznutiu rekuperačných jednotek EHR 140, 225, 280, 300, 325 a 480, DOMEO 210, IDEO 325 a 450.

Skriňa klapky MSK-AFP je vyrobená z pozinkovaného oceľového plechu. Na skrini je namontovaný servopohon a protimrazový termostat F2000 N. Pri montáži sa odporúča do potrubia zaobstarať z vonkajšej strany izoláciu Armaflex s hrúbkou minimálne 8 mm. 

Klapka MSK-AFP  sa montuje vždy do prívodného potrubia vonkajšieho vzduchu do jednotky podľa schémy. Montáž klapky je možná v akejkoľvek polohe a musí byť umiestnená tak, aby bol umožnený prístup k svorkovnici, termostatu a servopohonu. Kapilára termostatu sa montuje do potrubia odpadového vzduchu. Kapilára sa nesmie ostro ohýbať (min. polomer ohybu je 20 mm). 

Regulácia

Na protimrazovom termostate nastaviť teplotu na 0 °C. Pri poklese teploty začne klapka uzatvárať prívod studeného vonkajšieho vzduchu do jednotky a dôjde k zmiešaniu teplého vzduchu zo strojovne a vonkajšieho vzduchu. Zvýšenie teploty vzduchu pri vstupe do rekuperátora zaistí jeho rozmrazenie. Po navýšení teploty odpadného vzduchu na 0 °C dôjde k opätovnému otvoreniu prívodu vonkajšieho vzduchu do jednotky. 

Príslušenstvo

 

izolácia pre elimináciu rizika kondenzácie je súčasťou balenia
prívodný kábel nie je súčasťou balenia

Vlastnosti

Napätie 230/50 V/Hz
Možnosti platby:
Možnosti platby