Systemair SAVE VTC 200 rekuperačná jednotka

Výrobca: Systemair
Zdieľať:

3 094,68 EUR 3 575,61 EUR

2 907,00 EUR bez DPH
Nákup na splátky

Rekuperačná jednotka Systemair SAVE VTC 200 s protiprúdovým rekuperátorom je určená na vetranie otvorených priestorov až do 180m2. Disponuje energeticky úspornými ventilátormi RadiCal poháňanými motormi EC. EC motory sa vyznačujú veľmi nízkou hlučnosťou.

Rekuperačná jednotka Systemair SAVE VTC 200 je vybavená filtrami, ktoré majú nízku tlakovú stratu a tým poskytujú nízku hodnotu faktora SFP (Specific Fan Power), ďalej automatickým odmrazovaním - to môžete nastaviť v závislosti od interného prostredia a externých podmienok do jedného z troch režimov.

Na hlavnej obrazovke panela sa zobrazujú informácie o prietoku vzduchu, teplote, kvalite vzduchu a aktívnych funkciách. Systém regulácie SAVECair je vstavaný v dvierkach jednotky, umožňuje vykonávať všetky nastavenia vrátane regulácie, napríklad podľa snímača vlhkosti v odvodovom potrubí. Systém SAVECair môžete využívať v režimoch AUTO alebo MANUAL, poprípade môžete využiť jeden z predvolených režimov a to PÁRTY, MIMO a KRB.

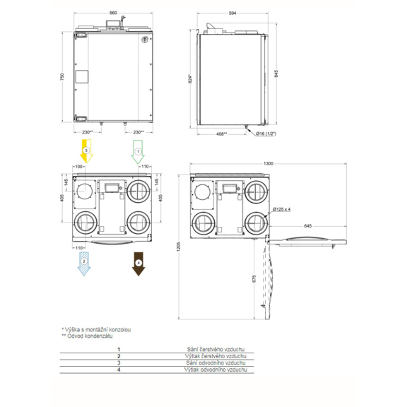
Rekuperačná jednotka Systemair SAVE VTC 200 sa skladá z plášťa jednotky, ktorý je vyrobený z pozinkovanej ocele s izoláciou proti kondenzácií. Vnútorná časť plášťa je vyrobená z expandovaného polypropylénu, ktorá poskytuje enormnú izoláciu proti hluku a tepelným stratám. Ďalej sa skladá z externej pripojovacej el. svorkovnice na vrchnej strane jednotky s prekáblovanými vstupmi a výstupmi čo uľahčuje montáž a integráciu rôznych doplnkových zariadení a snímačov.

Na prípadnú poruchu alebo potrebu niečo na jednotke opraviť vás upozornia alarmové symboly. Všetky komponenty rekuperačnej jednotky SAVE VTC 200 sú navrhnuté tak, aby sa pri nenáročnej výmene, náprave alebo len rutinnej kontrole dali jednoducho vytiahnuť.

  • SAVECair regulácia s farebným dotykovým panelom pre jednoduchšie ovládanie
  • Modbus komunikácia cez RS485 ako štandard
  • Internetová komunikácia cez Systemair cloud
  • Panelové filtre triedy G4/ISO Coarse 65% na prívode aj odvode vzduchu.

Pri používaní rekuperačnej jednotky Systemair SAVE VTC 200 v interiéri dbajte na:

  • Jednotka pracuje do 0°C, bez predohrevu v tesných priestoroch, kde nevyvážené vetranie prívodu/odvodu vzduchu nie je dovolené.
  • Jednotka pracuje do -3°C, bez predohrevu v priestoroch, kde nevyvážené vetranie prívodu/odvodu vzduchu je dovolené.
  • Pri prevádzke pri teplotách nižších ako -3°C až do -20°C je predohrev potrebný!
  • V prípade použitia jednotky Systemair SAVE VTC 200 v exteriéri a pri teplotách nižších ako 0°C je vhodné predohrev inštalovať.

Prevedenie

  • ľavé - prívod vzduchu na ľavej strane
  • pravé - prívod vzduchu na pravej strane
Vyberte si prevedenie

Vlastnosti

Hlučnosť 45 dB(A)
Hmotnosť 47 kg
Napätie 230 V
Frekvencia 50 Hz
Fáza 1 ~
Prietok vzduchu 267 m³/h
Doporučená veľkosť istenia 10 A
Trieda krytia IP24
Výkon 142 W

Video

Na stiahnutie

  • Systemair SAVE VTC 200 Rekuperačná jednotka - Eurovent certifikát 2018 EN ( 1.78 MB) Stiahnuť
  • Systemair SAVE VTC 200 Rekuperačná jednotka - PHI certifikát 2017 EN ( 166.30 KB) Stiahnuť
  • Systemair SAVE VTC 200 Rekuperačná jednotka - Rýchly sprievodca ( 932.10 KB) Stiahnuť
  • Systemair SAVE VTC Rekuperačná jednotka - Schéma EN ( 338.92 KB) Stiahnuť
  • Systemair SAVE VTC Rekuperačná jednotka - Montáž ovládacieho panela ( 1.23 MB) Stiahnuť
  • Systemair SAVE VTC 200 Rekuperačná jednotka - Inštalácia a servis EN ( 4.74 MB) Stiahnuť
  • Systemair SAVE VTC 200 Rekuperačná jednotka - Používateľský manuál EN ( 3.07 MB) Stiahnuť
  • Systemair SAVE VTC 200 Rekuperačná jednotka - Rozšírené technické vlastnosti ( 276.10 KB) Stiahnuť

Príslušenstvo

Systemair CB 100-0,4 elektrický ohrievač do kruhového potrubia INFO

293,97 EUR

v košíku
Systemair CB 100-0,4 elektrický ohrievač do kruhového potrubia INFO

341,94 EUR

v košíku
Systemair CB 100-0,4 elektrický ohrievač do kruhového potrubia INFO

424,35 EUR

v košíku
Systemair CE/CD 4pin rozdvojka INFO

16,73 EUR

v košíku
Systemair Connectduct 125-1000 M/F tlmič INFO

76,26 EUR

v košíku
Systemair CVVX mriežka čierna INFO

205,41 EUR

v košíku
Systemair CVVX mriežka biela INFO

211,56 EUR

v košíku
Systemair CWK vodný chladič pre kruhové potrubie INFO

842,55 EUR

v košíku
Systemair TG-K3/NTC10-01 snímač INFO

18,20 EUR

v košíku
Systemair FK 125 spona INFO

13,90 EUR

v košíku
Systemair sada na montáž ovládacieho panela SAVE Touch INFO

136,53 EUR

v košíku
Systemair LDC tlmič hluku pre kruhové ventilátory INFO

97,17 EUR

v košíku
Systemair LDC tlmič hluku pre kruhové ventilátory INFO

131,61 EUR

v košíku
Systemair IR24/P snímač INFO

154,98 EUR

v košíku
Systemair TG-R5/NTC10-01 snímač INFO

54,12 EUR

v košíku
Systemair RVAZ4 24A servopohon INFO

432,96 EUR

v košíku
Systemair TG-A1/NTC10-01 snímač INFO

17,84 EUR

v košíku
Systemair-E CO2 RH snímač INFO

535,05 EUR

v košíku
Systemair-E CO2 snímač INFO

504,30 EUR

v košíku
Systemair VAV/CAV sada SAVECair INFO

408,36 EUR

v košíku
Systemair VBC vodný ohrievač pre kruhové potrubie INFO

472,32 EUR

v košíku
Systemair VBC vodný ohrievač pre kruhové potrubie INFO

717,09 EUR

v košíku
Systemair ZTR 15-0,4 ventil INFO

118,08 EUR

v košíku
Systemair ZTR 15-0,4 ventil INFO

119,31 EUR

v košíku
Systemair ZTV 15-0,4 ventil INFO

103,32 EUR

v košíku
Systemair ZTV 15-0,6 ventil INFO

105,78 EUR

v košíku
Systemair RMK modul INFO

146,37 EUR

v košíku
Systemair RMK-T modul INFO

250,92 EUR

v košíku
Možnosti platby:
Možnosti platby