Systemair SAVE VTC 700 rekuperačná jednotka

Výrobca: Systemair
Zdieľať:

7 394,76 EUR 7 493,16 EUR

6 092,00 EUR bez DPH
Nákup na splátky

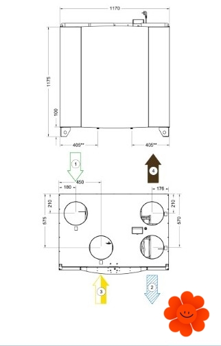
Rekuperačná jednotka Systemair SAVE VTC 700 s protiprúdovým rekuperátorom je určená na vetranie otvorených priestorov až do 550m2. Disponuje energeticky úspornými ventilátormi RadiCal poháňanými motormi EC. EC motory sa vyznačujú veľmi nízkou hlučnosťou.

Rekuperačná jednotka Systemair SAVE VTC 700 je vybavená filtrami, ktoré majú nízku tlakovú stratu a tým poskytujú nízku hodnotu faktora SFP (Specific Fan Power), ďalej automatickým odmrazovaním - to môžetenastaviť v závislosti od interného prostredia a externých podmienok do jedného z troch režimov.

Na hlavnej obrazovke panela, ktorý sa k jednotke pripája vo vrchnej časti pomocou konektora, sa zobrazujú informácie o prietoku vzduchu, teplote, kvalite vzduchu a aktívnych funkciách. Tento panel môže byť situovaný na stene alebo priamo na jednotke. Jednotka Systemair VTC 300 je bielej farby, disponuje kompletným regulačným systémom SAVECair, ktorý umožňuje vykonávať všetky nastavenia vrátane regulácie, napríklad podľa snímača vlhkosti v odvodovom potrubí.
Disponuje taktiež dvojplášťovými panelmi a izoláciou. Systém SAVECair môžete využívať v režimoch AUTO alebo MANUAL, poprípade môžete využiť jeden z predvolených režimov a to PÁRTY, MIMO a KRB.

Plášť rekuperačnej jednotky Systemair SAVE VTC 700 zabezpečuje enormnú izoláciu proti hluku a tepelným stratám. Ďalej sa skladá z externej pripojovacej el. svorkovnice na vrchnej strane jednotky s prekáblovanými vstupmi a výstupmi čo uľahčuje montáž a integráciu rôznych doplnkových zariadení a snímačov.

Na prípadnú poruchu alebo potrebu niečo na jednotke opraviť vás upozornia alarmové symboly. Všetky komponenty rekuperačnej jednotky SAVE VTC 700 sú navrhnuté tak, aby sa pri nenáročnej výmene,náprave alebo len rutinnej kontrole dali jednoducho vytiahnuť.

Rekuperačná jednotka Systemair SAVE VTC 700 môže byť doplnená elektrickým ohrievačom, ktorá funguje ako dohrev, ktorý potrebuje osobité napájanie (4,5kW,400V)

  • SAVECair regulácia s farebným dotykovým panelom pre jednoduchšie ovládanie
  • Modbus komunikácia cez RS485 ako štandard alebo cez TCP/IP
  • Internetová komunikácia cez Systemair cloud
  • Panelové filtre triedy M5/ePM10 50% na prívode aj odvode vzduchu.

Pri používaní rekuperačnej jednotky Systemair SAVE VTC 300 v interiéri dbajte na:

  • Jednotka pracuje do -5°C, bez predohrevu v tesných priestoroch, kde nevyvážené vetranie prívodu/odvodu vzduchu nie je dovolené.
  • Jednotka pracuje do -15°C, bez predohrevu v priestoroch, kde nevyvážené vetranie prívodu/odvodu vzduchu je dovolené.
  • Pri prevádzke pri teplotách nižších ako -15°C je predohrev potrebný!

Ako príslušenstvo sa môžu doobjednať filtre na odvod a na prívod vzduchu.

Prevedenie

  • ľavé - prívod vzduchu na ľavej strane
  • pravé - prívod vzduchu na pravej strane
Vyberte si prevedenie

Vlastnosti

Hlučnosť 44 dB(A)
Hmotnosť 151 kg
Napätie 230 V
Frekvencia 50 Hz
Fáza 1 ~
Prietok vzduchu 900 m³/h
Doporučená veľkosť istenia 10 A
Trieda krytia IP24
Výkon 341 W

Video

Na stiahnutie

  • Systemair SAVE VTC 700 Rekuperačná jednotka - Certifikát komponentu pasívneho domu EN ( 167.77 KB) Stiahnuť
  • Systemair SAVE VTC 700 Rekuperačná jednotka - Funkčná schéma ( 871.50 KB) Stiahnuť
  • Systemair SAVE VTC 700 Rekuperačná jednotka - Variačný list EN ( 1.20 MB) Stiahnuť
  • Systemair SAVE VTC 700 Rekuperačná jednotka - Montáž a údržba ( 5.60 MB) Stiahnuť
  • Systemair SAVE VTC Rekuperačná jednotka - Schéma EN ( 338.92 KB) Stiahnuť
  • Systemair SAVE VTC 700 Rekuperačná jednotka - Príručka používateľa ( 2.44 MB) Stiahnuť
  • Systemair SAVE VTC Rekuperačná jednotka - Montáž ovládacieho panela ( 1.23 MB) Stiahnuť
  • Systemair Reheater VTC 700 dohrev - Schéma zapojenia ( 1.81 MB) Stiahnuť
  • Systemair SAVE VTC 700 Rekuperačná jednotka - Uvedenie do prevádzky EN ( 1.13 MB) Stiahnuť

Príslušenstvo

Systemair CB 100-0,4 elektrický ohrievač do kruhového potrubia INFO

535,05 EUR

v košíku
Systemair CB 100-0,4 elektrický ohrievač do kruhového potrubia INFO

640,83 EUR

v košíku
Systemair CB 100-0,4 elektrický ohrievač do kruhového potrubia INFO

731,85 EUR

v košíku
Systemair IR24/P snímač INFO

154,98 EUR

v košíku
Systemair RVAZ4 24A servopohon INFO

432,96 EUR

v košíku
Systemair-E CO2 snímač INFO

504,30 EUR

v košíku
Systemair CE/CD 4pin rozdvojka INFO

16,73 EUR

v košíku
Systemair VAV/CAV sada SAVECair INFO

408,36 EUR

v košíku
Systemair-E CO2 RH snímač INFO

535,05 EUR

v košíku
Systemair TG-A1/NTC10-01 snímač INFO

17,84 EUR

v košíku
Systemair TG-K3/NTC10-01 snímač INFO

18,20 EUR

v košíku
Systemair TG-R5/NTC10-01 snímač INFO

54,12 EUR

v košíku
Systemair RS-24V INFO

32,84 EUR

v košíku
Systemair RMK modul INFO

146,37 EUR

v košíku
Systemair RMK-T modul INFO

250,92 EUR

v košíku
Systemair CWK vodný chladič pre kruhové potrubie INFO

1 371,45 EUR

v košíku
Systemair VBC vodný ohrievač pre kruhové potrubie INFO

781,05 EUR

v košíku
Systemair VBC vodný ohrievač pre kruhové potrubie INFO

1 156,20 EUR

v košíku
Systemair LDC tlmič hluku pre kruhové ventilátory INFO

223,86 EUR

v košíku
Systemair CVVX mriežka čierna INFO

389,91 EUR

v košíku
Systemair FK 250 spona INFO

16,97 EUR

v košíku
Systemair ZTV 15-0,4 ventil INFO

103,32 EUR

v košíku
Systemair ZTR 15-0,4 ventil INFO

118,08 EUR

v košíku
Systemair Tune-R - klapka INFO

345,63 EUR

v košíku
Systemair Connectduct 125-1000 M/F tlmič INFO

123,00 EUR

v košíku
Systemair sada na montáž ovládacieho panela SAVE Touch INFO

136,53 EUR

v košíku
Systemair sada na pripojenie el. predohrevu CB INFO

121,77 EUR

v košíku
Systemair CVVX mriežka biela INFO

397,29 EUR

v košíku
Možnosti platby:
Možnosti platby